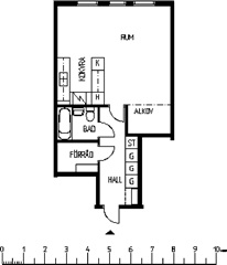
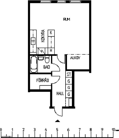
1 rum för 4 270 kr per månad

Rent 4 270 kr.
Rental Period Obegränsat
Type Lägenhet
Location Luleå
Area 41
Rooms 1 rum
Kontakta hyresvärd
PlusPaket från 39 kr
Köp PlusPaket för 39 kr för 14 dagar. Därefter 28 dagar för 374 kr
  • Tillgång till att kontakta alla hyresvärdar
  • Aktuella sökbara bostadsannonser
  • Först om nya bostadsobjekt
  • Kundförmåner och erbjudanden

professorsvägen, , våning: 1..

Antal rum: 1
Antal m²: 41
Hyra: 4 270 kr

Postnummer: 97751
Stad: Luleå

  • Förskottshyra: Kontakta hyresvärd
  • Deposition: Kontakta hyresvärd
  • Drift: Kontakta hyresvärd
  • Ledig: 1. juni 2026
  • Publicerad:
  • Kan vara tillåtna - fråga hyresvärden
  • Ärendenummer: 3719474