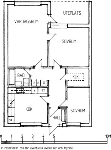
3 rum för 8 161 kr per månad

Rent 8 161 kr.
Rental Period Obegränsat
Type Lägenhet
Location Höganäs
Area 77
Rooms 3 rum
Kontakta hyresvärd
PlusPaket från 39 kr
Köp PlusPaket för 39 kr för 14 dagar. Därefter 28 dagar för 374 kr
  • Tillgång till att kontakta alla hyresvärdar
  • Aktuella sökbara bostadsannonser
  • Först om nya bostadsobjekt
  • Kundförmåner och erbjudanden

Allegatan, , våning: 0..

Antal rum: 3
Antal m²: 77
Hyra: 8 161 kr

Postnummer: 26333
Stad: Höganäs

  • Hiss
  • Förskottshyra: Kontakta hyresvärd
  • Deposition: Kontakta hyresvärd
  • Drift: Kontakta hyresvärd
  • Ledig: 1. maj 2026
  • Publicerad:
  • Kan vara tillåtna - fråga hyresvärden
  • Ärendenummer: 3665461