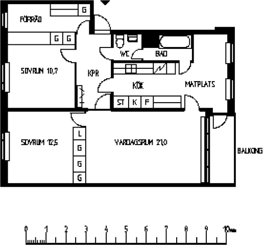
Lägenhet på Mjölkuddsvägen i Luleå

Rent 10 401 kr.
Rental Period Obegränsat
Type Lägenhet
Location Luleå
Area 84
Rooms 3 rum
Kontakta hyresvärd
PlusPaket från 39 kr
Köp PlusPaket för 39 kr för 14 dagar. Därefter 28 dagar för 374 kr
  • Tillgång till att kontakta alla hyresvärdar
  • Aktuella sökbara bostadsannonser
  • Först om nya bostadsobjekt
  • Kundförmåner och erbjudanden

Mjölkuddsvägen, , våning: 1..

Antal rum: 3
Antal m²: 84
Hyra: 10 401 kr

Postnummer: 97343
Stad: Luleå

  • Balkong/uteplats
  • Förskottshyra: Kontakta hyresvärd
  • Deposition: Kontakta hyresvärd
  • Drift: Kontakta hyresvärd
  • Ledig: 7. januari 2026
  • Publicerad:
  • Kan vara tillåtna - fråga hyresvärden
  • Ärendenummer: 3620989

Användare som har kollat denna bostad har även kollat dessa: