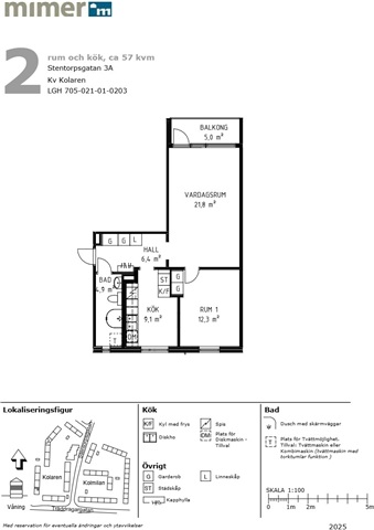
57 m2 lägenhet på Stentorpsgatan

Rent 8 890 kr.
Rental Period Obegränsat
Type Lägenhet
Location Västerås
Area 57
Rooms 2 rum
Kontakta hyresvärd
PlusPaket från 39 kr
Köp PlusPaket för 39 kr för 14 dagar. Därefter 28 dagar för 374 kr
  • Tillgång till att kontakta alla hyresvärdar
  • Aktuella sökbara bostadsannonser
  • Först om nya bostadsobjekt
  • Kundförmåner och erbjudanden

Stentorpsgatan.

Antal rum: 2
Antal m²: 57
Hyra: 8 890 kr

Postnummer: 72242
Stad: Västerås

  • Förskottshyra: Kontakta hyresvärd
  • Deposition: Kontakta hyresvärd
  • Drift: Kontakta hyresvärd
  • Ledig: Snarast
  • Publicerad:
  • Kan vara tillåtna - fråga hyresvärden
  • Ärendenummer: 3293696